Less than five months since its last declaration, Disney has filed paperwork adding more vacation homes to the timeshare inventory in Island Tower at Disney’s Polynesian Villas & Bungalows.
On August 4, 2025, Disney declared 12 more vacation homes for the timeshare inventory at the Polynesian’s new Island Tower. This latest declaration increases the number of vacation homes that Disney Vacation Club members can book using points from 72 to 84. There are still 138 vacation homes at the Island Tower that have not yet been declared and are still under the control of Disney.
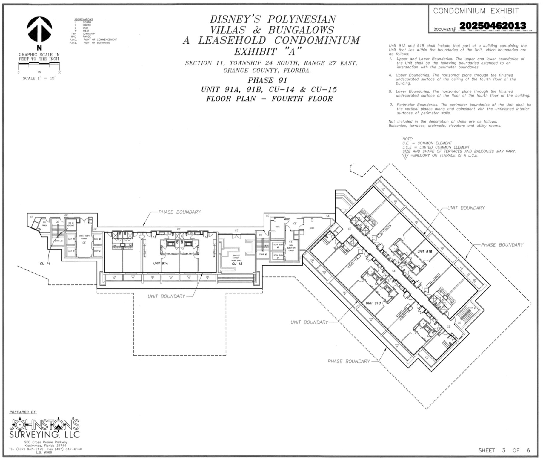
The 12 newly declared vacation homes are located on the fourth floor in the central and south end of the Tower building. Included in this declaration are two residential units numbered 91A and 91B. The former unit has three vacation homes while the latter unit has nine vacation homes. Together, the two units are adding two Duo Studios, three Tower Studios, three dedicated One-Bedroom villas, and four Lockoff Two-Bedroom Villas.

In terms of Disney Vacation Club points, Unit 91A has 58,566 DVC points allotted to it, while unit 91B has 159,840 points for a combined total of 218,406 DVC points. Over the last six months the Polynesian has averaged almost 78,000 points in sales. Thus, Disney will likely make another declaration before the end of the year in order to support ongoing sales.
This latest declaration brings the number of declared points at the Island Tower to 1,403,596 points, which is 38.9% of the Island Tower’s 3,608,934 estimated total points.
The breakout of all declared vacation homes by accommodation type is as follows:
- 17 of 39 Duo Studios
- 29 of 91 Tower Studios
- 12 of 26 Dedicated One-Bedroom Villas
- 22 of 46 Lockoff Two-Bedroom Villas
- 2 of 16 Dedicated Two-Bedroom Villas
- 2 of 4 Two-Bedroom Deluxe Villas
The 138 vacation homes not yet declared are under the control of Disney. It can use those accommodations as cash reservations, for marketing purposes, or any other reason Disney chooses.
Although the legally-declared rooms are located on the building's fourth floor, incoming guests can be assigned any matching accommodation type on any floor of the building.
Wil Lovato is a contributor to DVCNews.com and has been a Disney Vacation Club owner since 2009. His DVC Home Resorts include Copper Creek Villas, Bay Lake Tower, Animal Kingdom Villas, and Aulani. He can be found posting on many Disney discussion forums under the username of “wdrl.”
